Thiết kế nhà phú quốc giới thiệu đến khách hàng mẫu biệt thự ven biển đẹp lạ. Để lại sau lưng cuộc sống thành thị đông vui, náo nhiệt, một gia đình quyết định tìm đến khu vực còn hoang sơ ven biển để xây dựng nơi ở cho riêng mình. Công trình sau khi hoàn thành như một “thiên đường nghỉ dưỡng”, góp phần mang đến cho người ở không gian sinh hoạt, nghỉ dưỡng thoải mái, tiện nghi như tại các khu resort 5 sao có thể khai thác cũng được.
Tổng thể công trình Naia House sau khi hoàn thành vào năm 2021
Yêu cầu này theo lý giải của gia chủ nhằm đa dạng không gian sinh hoạt, nghỉ ngơi của gia đình, đồng thời, đảm bảo chỗ ăn ở mỗi khi có khách đến thăm nhà.
Công trình 595m2 nằm lọt giữa những cánh rừng nguyên sinh rậm rạp vùng ven biển Santa Teresa Beach
Khối nhà ở đầu tiên (Naia 1) bao gồm 2 căn liền kề, được bố trí nằm lệch về bên phải theo hướng nhìn từ lối vào cửa chính. Đây là khu vực có diện tích lớn, được thiết kế dựa trên việc tối ưu hóa những yếu tố tự nhiên như cây xanh, ánh sáng và không khí, nhằm tạo ra không gian sinh hoạt thoải mái, lý tưởng nhất cho gia chủ.
Naia 1 gồm hai căn nhà có thiết kế riêng biệt, sáng tạo và đẹp mắt
Bản vẽ thiết kế cụm nhà ở Naia 1, trong đó, hai căn nhà được ngăn cách với nhau bởi một lối đi nhỏ ở chính giữa
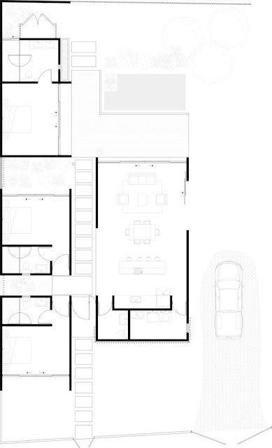
Mô phỏng nguyên lý lấy khí cho các khu vực sinh hoạt dựa trên cách bố trí phòng ở của Naia 1
Khu vực thư giãn, ăn uống thể hiện sự phá cách trong cách thiết kế và xây dựng ngôi nhà. Các KTS đã quyết định lược bỏ đi toàn bộ phần tường bao, đồng thời, nâng lên gấp đôi chiều cao mái nhà giúp khu vực sinh hoạt trở nên thông thoáng, mát mẻ và dễ chịu. Nhờ không gian rộng rãi, thoải mái, đây là nơi chủ yếu được gia đình lựa chọn để tổ chức những bữa tiệc tập thể đông người mỗi khi có bạn bè, người thân đến thăm nhà.
Phần mái hiên được thiết kế như một chiếc ô lớn, che phủ toàn bộ không gian sinh hoạt phía dưới của gia đình
Nhà ở được tạo thành với phần khung bằng kim loại và những tấm chắn nắng được làm từ gỗ Teak bản địa. Đặc biệt, trên mỗi mái nhà các KTS đều gắn thêm những tấm pin mặt trời giúp cung cấp điện năng sinh hoạt hàng ngày cho gia đình
Tường bao được lược bỏ biến những khoảng sân vườn quanh nhà trở thành một phần nối liền với khu vực sinh hoạt
Các tấm chắn bằng gỗ được thiết kế dạng lưới giúp hạn chế đáng kể ánh nắng chiếu xiên gây cản trở hoạt động hàng ngày của gia đình
Đồ dùng sinh hoạt được chuẩn bị chu đáo, tiện nghi, sẵn sàng phục vụ cùng lúc nhu cầu sử dụng của từ 10 đến 15 người
Cây xanh phủ kín khoảng sân sau tạo bầu không khí mát mẻ, trong lành cho căn nhà
Phần còn lại của Naia 1 là một căn nhà 2 tầng với 4 phòng ngủ cùng 2 phòng vệ sinh. Các không gian sinh hoạt tại đây được bố trí như sau: 2 phòng ngủ phía trước có cửa mở hướng ra ngoài, chính giữa 1 giếng trời lớn, kết nối với 2 phòng ngủ và 2 phòng vệ sinh ở phía sau. Thiết kế này giúp tối ưu những điều kiện tự nhiên thuận lợi sẵn có, đưa ánh sáng và không khí từ bên ngoài vào trong tất cả phòng ở trong nhà, góp phần mang đến cảm giác mát mẻ, thoải mái và dễ chịu cho người ở trong quá trình sinh hoạt, nghỉ ngơi hàng ngày.
Căn nhà 2 tầng nổi bật với lớp sơn trắng tinh, được phủ kín toàn bộ mặt bên ngoài
Phòng ngủ đơn giản, nhẹ nhàng với nội thất chủ yếu được làm từ gỗ Tek tự nhiên
Cửa lớn mở thông với không gian bên ngoài giúp không gian sinh hoạt trở nên thoáng mát, thoải mái
Hệ thống cầu thang - giếng trời nằm ngăn giữa 2 khu vực sinh hoạt của căn nhà
Khối nhà còn lại (Naia 2) gồm 2 căn nhà 1 tầng nằm ngăn cách với Naia 1 qua một khu vườn nhỏ phủ kín cây xanh. Các phòng ở tại đây được bố trí thành 2 dãy nhà, nằm song song dọc theo một lối đi chung ở giữa. Thiết kế này theo lý giải của các KTS sẽ tạo ra luồng không khí lưu thông dọc theo hành lang, giúp cho không gian sinh hoạt của gia đình trở nên mát mẻ, thoải mái và dễ chịu.
Naia 2 có phong cách khá tương đồng với Naia 1 với 1 dãy nhà được ốp gỗ và 1 dãy nhà được phủ sơn trắng toàn bộ
Bản vẽ thiết kế cụm nhà ở Naia 2
Mô phỏng luồng không khí làm mát các phòng ở của gia đình
Căn nhà đầu tiên tại Naia 2 có thiết kế tương đồng về mục đích sử dụng, số lượng khu vực chức năng và phong cách kiến trúc với không gian thư giãn, ăn uống tại cụm nhà ở Naia 1. Tuy vậy, không gian sinh hoạt tại đây lại có phần riêng tư hơn nhờ việc được đóng kín toàn bộ mặt trước và mở cửa vào phía bên hông nhà. Với diện tích vừa phải, lại khá kín đáo khi quan sát từ bên ngoài, đây là nơi ăn uống chủ yếu, được lựa chọn để sử dụng hàng ngày mỗi khi chỉ có các thành viên trong gia đình.
Mặt trước và mái che được ốp gỗ Teak tự nhiên, tương tự thiết kế tại Naia 1, tạo màu sắc tươi tắn, đẹp mắt cho căn nhà
Khoảng không giữa hai dãy nhà được lát đá và trồng thêm cây xanh dọc theo lối đi
Cửa lớn dẫn vào khu vực ăn uống hàng ngày của gia đình
Nội thất nhẹ nhàng, dân dã với đồ dùng chủ yếu được tạo nên từ hai loại vật liệu chính là gỗ và đá
Các cửa lớn hướng ra khu vực quanh căn nhà từ nhiều phía khác nhau giúp không gian sinh hoạt luôn mát mẻ, thoải mái
Bàn ăn bằng gỗ nằm chính giữa căn phòng, được thiết kế dành cho 6 người sử dụng
Tranh treo tường và đèn lồng gắn trần là hai trong số những món đồ trang trí thú vị giúp căn phòng trở nên đẹp mắt, sinh động
Khu vực nấu nướng tiện nghi được thiết kế đảo bếp rộng rãi, sẵn sàng phục vụ nhu cầu vào bếp của nhiều người cùng lúc
Bể bơi ngoài trời phía sau phòng ăn mang đến không gian nghỉ ngơi, thư giãn lý tưởng cho các thành viên gia đình
Ghế băng dài bên hồ nước tạo cảm giác như đang lạc bước tại một khu nghỉ dưỡng 5 sao sang trọng
Ghế võng là vị trí yêu thích được gia chủ lựa chọn cho việc thư giãn, đọc sách và ngắm cảnh
Khu vực cuối cùng của công trình là một dãy nhà 1 tầng - 3 phòng ngủ nằm kế tiếp nhau theo chiều dọc. Mỗi không gian tại đây được thiết kế thành 1 khối hộp chữ nhật riêng biệt, góp phần tạo sự riêng tư và yên tĩnh cho người ở trong quá trình sinh hoạt. Giữa mỗi căn phòng, các KTS đều dành ra một khoảng trống nhỏ để trồng thêm cây xanh và lắp đặt mái che trong suốt, giúp cải thiện khả năng làm mát tự nhiên cho vị trí nghỉ ngơi của gia đình.
Các phòng ngủ được xây dựng vuông vắn, nổi bật với lớp sơn trắng phủ kín toàn bộ các bức tường bên ngoài
Cửa kính trong suốt giúp các phòng ngủ luôn tươi sáng suốt cả ngày dài
Nội thất đơn giản, nhẹ nhàng với hai màu sắc chủ đạo là trắng của tường và nâu vàng của đồ gỗ
Góc nhìn hướng ra phía ngoài từ bên trong phòng ngủ của gia đình
Khoảng nối giữa các phòng là một khu vườn mini với đủ loại cây trồng tươi tốt
Phòng ngủ phía trong được mở cửa hướng về khu vực hồ bơi sau nhà để lấy sáng và không khí
Góc nhìn thu trọn khung cảnh hồ bơi - sân vườn từ bên trong phòng ngủ
Phòng ngủ nối liền khu vệ sinh tạo không gian sinh hoạt khép kín, riêng tư cho người ở
Khu vực vệ sinh thông thoáng nhờ được kết nối với không gian bên ngoài qua các khoảng trống trên tường và mái nhà
Bằng sự khéo léo, linh hoạt và sáng tạo, các KTS đã tận dụng toàn bộ những điều kiện tự nhiên sẵn có để tạo nên một không gian sinh hoạt vô cùng tiện nghi, lý tưởng cho người. Sở hữu một ngôi nhà tuyệt vời như Naia House như một giấc mơ đã trở thành hiện thực, giúp gia chủ có thể thỏa sức tận hưởng những phút giây nghỉ ngơi bình yên, riêng tư và thoải mái bên gia đình thân yêu của mình.
Hình ảnh bản vẽ phác thảo thiết kế công trình. Qua các mẫu thiết kế trên , chắc chắn khách hàng đã có ý tưởng cơ bản cho ngôi nhà của mình. Hãy liên hệ với đội ngũ kiến trúc sư giàu kinh nghiệm của chúng tôi để cùng xây dựng cho ngôi nhà mới của mình nhé!
Tham khảo công trình cải tạo biệt thự tại Suối Lớn An Thới của thiết kế nhà phú quốc:
Bạn có thể tham khảo nhiều ý tưởng thiết kế để áp dụng cho ngôi nhà của mình ở phú quốc tại PNT Decor.
Nếu Bạn muốn nhận các mẫu thiết kế tương tự như công trình trên có thể liên hệ ngay với PNT Decor qua hotline 0937.677.001 hoặc 0907.786.100 để được tư vấn bởi đội ngũ KTS giàu kinh nghiệm nhé.
Office: 139 Đoàn Thị Điểm, Kp12, Dương Đông, Phú Quốc, Kiên Giang
Thông tin công trình
Tên: Naia House
Diện tích: 595m2
Địa điểm: Costa Rica
Hoàn thành: 2020
Thiết kế: Studio Saxe
Bài viết: Lê Hiếu

Không có nhận xét nào:
Đăng nhận xét